分譲住宅・分譲実績施工事例

タケショウの家 / 神戸、西宮を中心としたタケショウの分譲住宅をご紹介

こだわりをかたちに。株式会社タケショウ
  • タケショウタケショウ
  • タケショウ物件紹介
  • タケショウ施工事例
  • タケショウ施工事例
  • タケショウ施工事例
  • タケショウ求人情報
  • タケショウお問い合わせ
  • タケショウ

新築施工事例

Chou Chou 神戸 楠谷町(シュシュ神戸 楠谷町)
完成年月日:平成25年8月9日 物件所在地:神戸市兵庫区楠谷町 建物構造:木造3階建て 仕様:ナチュラル仕様
外観
外観
外観
外観

内観
内観
内観
内観
内観
内観
内観
内観

図面

+配置図

図面

+1階平面図

図面

+2階平面図

図面

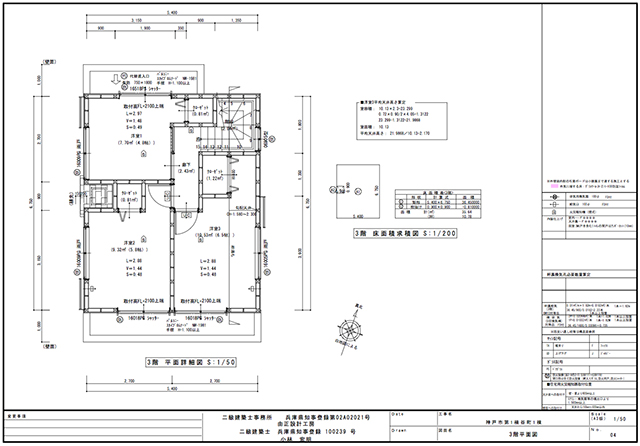
+3階平面図

図面

+立面図


この物件は3階建にすることで、南側は日当りと宇治川公園の緑の眺望が素敵です。
北側も六甲山の山並み眺望が最高です。建物は赤と白を基調に、お気に入り(Chou Chou)のこだわり住宅に仕上げました。

TOP | 新築分譲 | 分譲実績 | 注文実績 | 設備・仕様 | 求人情報 | アフターサービスお問い合わせ | 下請業者様募集| リンク | サイトマップ
 タケショウ
株式会社タケショウ
〒663-8023 西宮市大森町12番5号
TEL.0798-67-7435 FAX.0798-67-7436