分譲住宅・分譲実績施工事例

タケショウの家 / 神戸、西宮を中心としたタケショウの分譲住宅をご紹介

こだわりをかたちに。株式会社タケショウ
  • タケショウタケショウ
  • タケショウ物件紹介
  • タケショウ施工事例
  • タケショウ施工事例
  • タケショウ施工事例
  • タケショウ求人情報
  • タケショウお問い合わせ
  • タケショウ

新築施工事例

御影本町 Duo KobeⅡ (御影本町デュオ神戸Ⅱ)
完成年月日:平成25年11月8日 物件所在地:神戸市東灘区御影本町8丁目 建物構造:木造3階建て 仕様:ナチュラル仕様
外観
外観
外観
外観

内観
内観
内観
内観
内観
内観
内観
内観

図面

+配置図

図面

+1階平面図

図面

+2階平面図

図面

+3階平面図

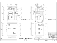
図面

+立面図


Ⅱ号地の目玉は何と言っても2階南面の電動シャッター付ワイドサッシでしょう。明るさは圧巻です。
その他にもリビング前の三角テラスは屋根付となり、雨の日でも窓を空けられる解放感があります。リビングニッチの位置や飾り棚にも遊び心満載の住宅となりました。

TOP | 新築分譲 | 分譲実績 | 注文実績 | 設備・仕様 | 求人情報 | アフターサービスお問い合わせ | 下請業者様募集| リンク | サイトマップ
 タケショウ
株式会社タケショウ
〒663-8023 西宮市大森町12番5号
TEL.0798-67-7435 FAX.0798-67-7436