分譲住宅・分譲実績施工事例

タケショウの家 / 神戸、西宮を中心としたタケショウの分譲住宅をご紹介

こだわりをかたちに。株式会社タケショウ
  • タケショウタケショウ
  • タケショウ物件紹介
  • タケショウ施工事例
  • タケショウ施工事例
  • タケショウ施工事例
  • タケショウ求人情報
  • タケショウお問い合わせ
  • タケショウ
新築施工事例
尼崎市第1塚口本町1棟
完成年月日:平成24年7月25日 物件所在地:尼崎市塚口本町7丁目 建物構造:木造3階建て 仕様:ナチュラル仕様
外観
外観
外観
外観

内観
内観
内観
内観
内観
内観
内観
内観

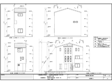
図面

+配置図

図面

+1階平面図

図面

+2階平面図

図面

+3階平面図

図面

+立面図


土地面積の中には道路負担部分があり、建物有効面積を考えると、普通であれば3LDKを企画する所を時間をかけてプランニングをして4LDKとしました。(洋室の大きさとバルコニーの大きさを犠牲にしてしまいましたが・・・)プロ目線では、西側道路が建築基準法の道路ではないので道路斜線が無く大屋根とすることができ、かっこいい屋根形状にできたと満足しています。


TOP | 新築分譲 | 分譲実績 | 注文実績 | 設備・仕様 | 求人情報 | アフターサービスお問い合わせ | 下請業者様募集| リンク | サイトマップ
 タケショウ
株式会社タケショウ
〒663-8023 西宮市大森町12番5号
TEL.0798-67-7435 FAX.0798-67-7436