分譲住宅・分譲実績施工事例

タケショウの家 / 神戸、西宮を中心としたタケショウの分譲住宅をご紹介

こだわりをかたちに。株式会社タケショウ
  • タケショウタケショウ
  • タケショウ物件紹介
  • タケショウ施工事例
  • タケショウ施工事例
  • タケショウ施工事例
  • タケショウ求人情報
  • タケショウお問い合わせ
  • タケショウ

新築施工事例

神戸市須磨区明神町①
完成年月日:令和2年2月25日 物件所在地:神戸市須磨区明神町二丁目 建物構造:木造 2階建て 仕様:標準仕様(第9期)
外観
外観
外観
外観

内観
内観
内観
内観
内観
内観
内観
内観

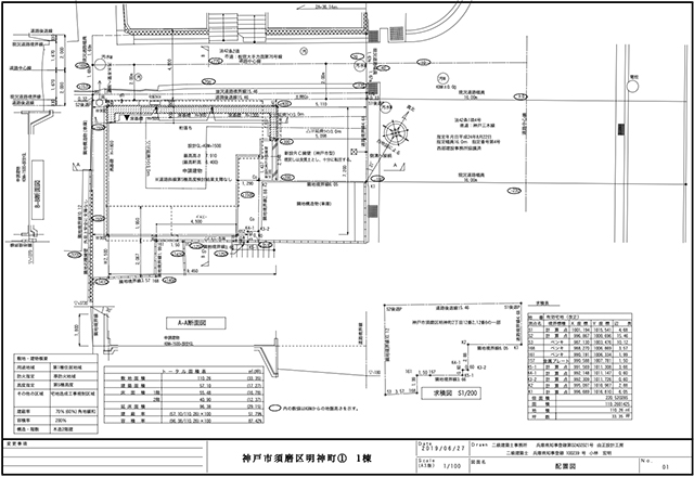
図面

+配置図

図面

+1階平面図

図面

+2階平面図

図面

+立面図


凹凸の多い敷地形状で、その形を利用したプライベートスペース(裏庭)や東側道路は比較的交通量が多いため、建物を西寄りに設計することで少しでも車の通行音を緩和できるように設計しています。また、四方の隣地建物から見下げられてる感じがあったので、階段の位置や窓の形状を考えて目線を気にせず住みやすい家を目指しました。

TOP | 新築分譲 | 分譲実績 | 注文実績 | 設備・仕様 | 会社概要 | 求人情報 | お問い合わせ | 下請業者様募集| リンク | サイトマップ
 タケショウ
株式会社タケショウ
〒663-8023 西宮市大森町12番5号
TEL.0798-67-7435 FAX.0798-67-7436