分譲住宅・分譲実績施工事例

タケショウの家 / 神戸、西宮を中心としたタケショウの分譲住宅をご紹介

こだわりをかたちに。株式会社タケショウ
  • タケショウタケショウ
  • タケショウ物件紹介
  • タケショウ施工事例
  • タケショウ施工事例
  • タケショウ施工事例
  • タケショウ求人情報
  • タケショウお問い合わせ
  • タケショウ
新築施工事例
西宮市第1上甲子園2号地
完成年月日:平成24年6月11日 物件所在地:西宮市上甲子園5丁目 建物構造:木造2階建て 仕様:ナチュラル仕様
外観
外観
外観
外観

内観
内観
内観
内観
内観
内観
内観
内観

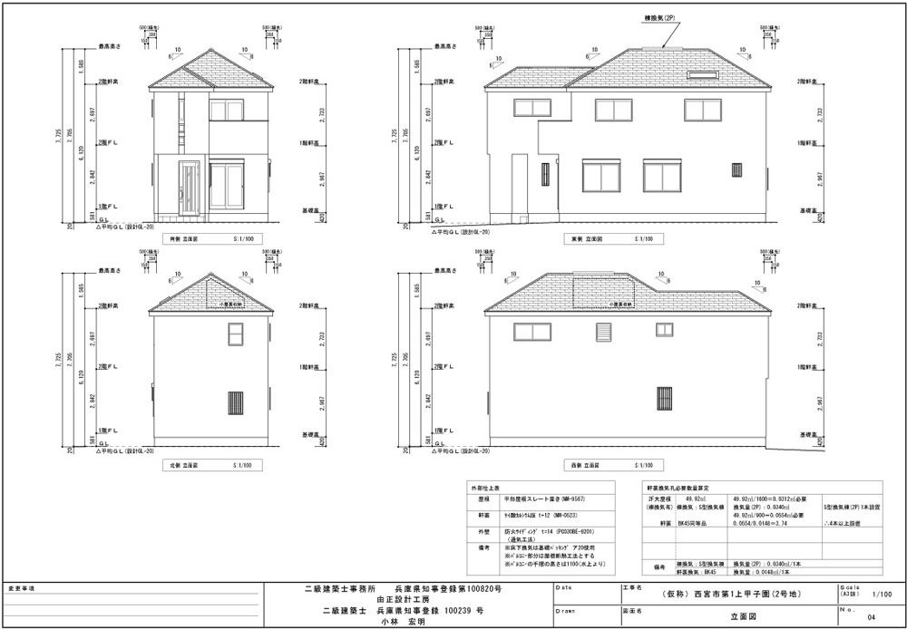
図面

+2号地 配置図

図面

+2号地 1階平面図

図面

+2号地 2階平面図

図面

+2号地 立面図


この物件は、玄関ポーチ前に軽自動車が駐車することができ、ガレージスペースを2台分確保しております。上甲子園で2階建て・駐車場2台・4LDKでリビングを18帖以上にこだわり、プランニングしました。(1号地同条件)その上、日当りも良く室内も明るい住宅を企画でき、見た目も室内も満足の仕上がりです。

TOP | 新築分譲 | 分譲実績 | 注文実績 | 設備・仕様 | 求人情報 | アフターサービスお問い合わせ | 下請業者様募集| リンク | サイトマップ
 タケショウ
株式会社タケショウ
〒663-8023 西宮市大森町12番5号
TEL.0798-67-7435 FAX.0798-67-7436